第十三章 顶棚装饰装修构造图(中)
第二节 矿棉吸声板顶棚构造

图 13-2-1 T 型单层骨架顶棚三维图

图 13-2-2 T 型单层骨架顶棚平面图

图 13-2-3 T 型单层骨架顶棚构造节点图(一)

图 13-2-4 T 型单层骨架顶棚构造节点图(二)

图 13-2-5 T 型双层骨架顶棚三维图

图 13-2-6 T 型双层骨架顶棚平面图

图 13-2-7 T 型双层骨架顶棚构造节点图(一)

图 13-2-8 T 型双层骨架顶棚构造节点图(二)

图 13-2-9 暗架式矿棉板顶棚三维图方向一

图 13-2-10 暗架式矿棉板顶棚三维图方向二

图 13-2-11 暗架式矿棉板顶棚构造节点图(一)

图 13-2-12 暗架式矿棉板顶棚构造节点图(二)

图 13-2-13 明架式矿棉板顶棚三维图方向一

图 13-2-14 明架式矿棉板顶棚三维图方向二

图 13-2-15 明架式矿棉板顶棚构造节点图(一)

图 13-2-16 明架式矿棉板顶棚构造节点图(二)

图 13-2-17 半明架式矿棉板顶棚三维图方向一

图 13-2-18 半明架式矿棉板顶棚三维图方向二

图 13-2-19 半明架式矿棉板顶棚构造节点图(一)

图 13-2-20 半明架式矿棉板顶棚构造节点图(二)

图 13-2-21 暗明龙骨结合矿棉板顶棚三维图

图 13-2-22 暗明龙骨结合矿棉板顶棚平面图

图 13-2-23 暗明龙骨结合矿棉板顶棚构造节点图(一)

图 13-2-24 暗明龙骨结合矿棉板顶棚构造节点图(二)

图 13-2-25 复合粘贴矿棉板顶棚三维图

图 13-2-26 复合粘贴矿棉板顶棚平面图

图 13-2-27 复合粘贴矿棉板顶棚构造节点图(一)

图 13-2-28 复合粘贴矿棉板顶棚构造节点图(二)
第三节 金属板(网)顶棚构造

图 13-3-1 方形铝扣板顶棚三维图方向一

图 13-3-2 方形铝扣板顶棚三维图方向二

图 13-3-3 方形铝扣板顶棚构造节点图(一)

图 13-3-4 方形铝扣板顶棚构造节点图(二)

图 13-3-5 明架方形铝扣板顶棚三维图

图 13-3-6 条形铝扣板顶棚(一)三维图

图 13-3-7 明架方形铝扣板顶棚构造节点图

图 13-3-8 条形铝扣板顶棚(一)构造节点图

图 13-3-9 条形铝扣板顶棚(二)三维图

图 13-3-10 铝方通顶棚三维图

图 13-3-11 条形铝扣板顶棚(二)构造节点图

图 13-3-12 铝方通顶棚构造节点图

图 13-3-13 铝垂片顶棚三维图

图 13-3-14 铝垂片顶棚构造节点图

图 13-3-15 铝圆管顶棚构造节点图

图 13-3-16 铝圆管顶棚三维图

图 13-3-17 铝格栅顶棚三维图

图 13-3-18 铝蜂窝复合板顶棚三维图

图 13-3-19 铝格栅顶棚构造节点图

图 13-3-20 铝蜂窝复合板顶棚构造节点图

图 13-3-21 金属单板顶棚三维图

图 13-3-22 金属单板顶棚构造节点图

图 13-3-23 U 型挂板与灯箱顶棚交接构造节点图

图 13-3-24 U 型挂板与灯箱顶棚交接三维图

图 13-3-25 暗龙骨金属网顶棚三维图

图 13-3-26 暗龙骨金属网顶棚平面图

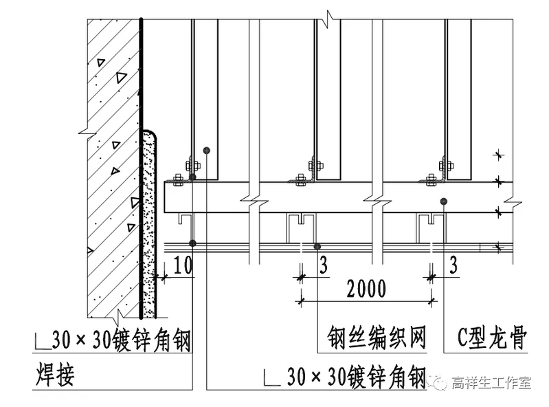
图 13-3-27 暗龙骨金属网顶棚构造节点图(一)

图 13-3-28 暗龙骨金属网顶棚构造节点图(二)

图 13-3-29 明龙骨金属网顶棚三维图

图 13-3-30 明龙骨金属网顶棚平面图

图 13-3-31 明龙骨金属网顶棚构造节点图(一)

图 13-3-32 明龙骨金属网顶棚构造节点图(二)
