第十三章顶棚装饰装修构造图(上)
顶棚也称天花、天棚或吊顶,在室内占有较大的界面,顶棚的装饰装修对于整个空间的装修效果有相当大的影响,同时对于改善室内物理环境(光照、隔热、防火、音响效果等)也有显著的作用。
顶棚装饰构造要根据功能要求、外观形式、饰面材料等选择。
顶棚装饰的基本构造包括吊筋、龙骨和面层三部分。吊筋通常用圆钢制作,截面一般应不小于 φ6 mm。钢龙骨由薄壁镀锌钢带制成,有 38、50、60 三个系列,可分别用于不同的盒子;铝合金龙骨,由型材制成,分为轻型、中型、重型三个系列。顶棚面层采用纸面石膏板、不燃板、铝合金板、塑料扣板等。
顶棚装饰的类型:
① 按装饰面层与基层的关系分,有直接式顶棚和悬吊式顶棚;
② 按饰面材料与龙骨的关系分,有活动装配式顶棚和固定式顶棚;
③ 按外观分,有平面式顶棚、井格式顶棚、分层式顶棚、架构式顶棚以及发光顶棚;
④ 按装饰面材分,主要有石膏板顶棚、矿棉板顶棚、金属板顶棚、木质顶棚以及玻璃顶棚;
⑤ 按承载能力分有上人式顶棚和不上人式顶棚。上人式顶棚要求有较大的强度与适当的内部空间,主龙骨要能承受 80 ~ 100 kg 的荷载,顶棚上部的空间高度应为 0.9 ~ 1.5 m。同时需预留检修孔,设具有足够强度的检修道。不上人式顶棚上部空间的高度相对较低,龙骨的荷载力亦可适当降低。
第一节轻钢龙骨石膏板顶棚构造

13-1-1 U、C 型轻钢龙骨顶棚三维图(双层骨架)

图 13-1-2 U、C 型轻钢龙骨顶棚平面图(双层骨架)

图 13-1-3 U、C 型轻钢龙骨顶棚构造节点图(双层骨架)

图 13-1-4 U、C 型轻钢龙骨顶棚三维图(单层骨架)

图 13-1-5 U、C 型轻钢龙骨顶棚平面图(单层骨架)

图 13-1-6 U、C 型轻钢龙骨顶棚构造节点图(单层骨架)

图 13-1-7 顶棚反向支撑(一)三维图

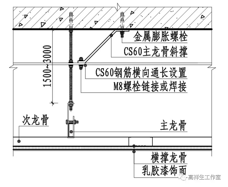
13-1-8 顶棚反向支撑(一)构造节点图

13-1-9 顶棚反向支撑(二)构造节点图

图 13-1-10 顶棚反向支撑(三)构造节点图

图 13-1-11 卡式承载龙骨顶棚三维图

图 13-1-12 卡式承载龙骨顶棚构造节点图(一)

图 13-1-13 卡式承载龙骨顶棚构造节点图(二)

图 13-1-14 扁钢龙骨顶棚三维图

图 13-1-15 扁钢龙骨顶棚构造节点图

图 13-1-16 U 型固定夹顶棚三维图

图 13-1-17 U 型固定夹顶棚平面图

图 13-1-18 U 型固定夹顶棚构造节点图(一)

图 13-1-19 U 型固定夹顶棚构造节点图(二)

图 13-1-20 折线型顶棚(一)

图 13-1-21 折线型顶棚(二)三维图

图 13-1-22 折线型顶棚(一)构造节点图
图 13-1-23 折线型吊顶剖面节点图(二)

图 13-1-24 穹顶顶棚三维图方向一

图 13-1-25 穹顶顶棚三维图方向二

图 13-1-26 穹顶顶棚构造节点图

图 13-1-27 钢架构转换层顶棚三维图

图 13-1-28 钢架构转换层顶棚构造节点图(一)

图 13-1-29 钢架构转换层顶棚构造节点图(二)

图 13-1-30 轻钢龙骨马道顶棚三维图

图 13-1-31 轻钢龙骨马道顶棚平面图

图 13-1-32 轻钢龙骨马道顶棚构造节点图(一)

13-1-33 轻钢龙骨马道顶棚构造节点图(二)

图 13-1-34 角钢马道顶棚三维图

图 13-1-35 角钢马道顶棚平面图

图 13-1-36 角钢马道顶棚构造节点图(一)

图 13-1-37 角钢马道顶棚构造节点图(二)

图 13-1-38 不上人顶棚三维图 方向一

图 13-1-39 不上人顶棚顶棚构造节点图

图 13-1-40 不上人顶棚三维图 方向二

图 13-1-41 上人顶棚三维图 方向一

图 13-1-42 上人顶棚构造节点图

图 13-1-43 上人顶棚三维图 方向二

图 13-1-44 顶棚检修口(不上人)三维图

图 13-1-45 顶棚检修口(不上人)平面图

图 13-1-46 顶棚检修口(不上人)构造节点图(一)

图 13-1-47 顶棚检修口(不上人)构造节点图(二)

图 13-1-48 顶棚检修口(上人)三维图

图 13-1-49 顶棚检修口(上人)平面图

图 13-1-50 顶棚检修口(上人)构造节点图(一)

图 13-1-51 顶棚检修口(上人)构造节点图(二)

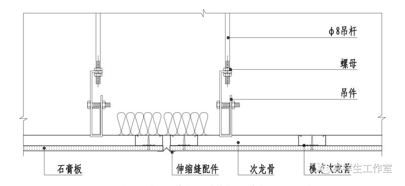
图 13-1-52 双层石膏板顶棚伸缩缝三维图
(伸缩缝垂直于主龙骨)

图 13-1-53 双层石膏板顶棚伸缩缝构造节点图
(伸缩缝垂直于主龙骨)

图 13-1-54 双层石膏板顶棚伸缩缝构造节点图
(伸缩缝平行于主龙骨)

图 13-1-55 单层石膏板顶棚伸缩缝三维图
(伸缩缝垂直于主龙骨)

图 13-1-56 单层石膏板顶棚伸缩缝构造节点图
(伸缩缝垂直于主龙骨)

图 13-1-57 单层石膏板顶棚伸缩缝构造节点图
(伸缩缝平行于主龙骨)

图 13-1-58 顶棚伸缩缝(一)三维图

图 13-1-59 顶棚伸缩缝(一)构造节点图(一)

图 13-1-60 顶棚伸缩缝(一)构造节点图(二)

图 13-1-61 顶棚伸缩缝(二)三维图

图 13-1-62 顶棚伸缩缝(二)构造节点图

图 13-1-63 顶棚成品铝板检修口构造节点图

图 13-1-64 顶棚成品铝板检修口三维图
